Izsoļu arhīvs

Izsolīs nomas tiesības uz neapdzīvojamo telpu nekustamajā īpašumā “Pagastmāja”, Snēpele, Snēpeles pagasts, Kuldīgas novads, 18 m²

Kuldīgas novada pašvaldība mutiskā izsolē izsolīs nomas tiesības uz neapdzīvojamo telpu nekustamajā īpašumā “Pagastmāja”, Snēpelē, Snēpeles pagastā, Kuldīgas novadā, ar kadastra apzīmējumu 62900060284001011.

Mutiskā izsole notiks 2025. gada 24. februārī plkst. 13:30, Kuldīgas novada pašvaldībā, Baznīcas ielā 1, Kuldīgā, Kuldīgas novadā.

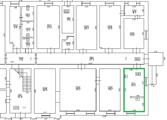
Nomas tiesību izsolē tiek piedāvāta pašvaldības nekustamā īpašuma “Pagastmāja”, Snēpelē, Snēpeles pagasts, Kuldīgas novads, neapdzīvojamo telpu grupa ar kadastra apzīmējumu 62900060284001011, platība 18,0 m2.

Izsoles nosacītā cena (sākumcena) ir 8,00 EUR (astoņi euro, 00 centi) mēnesī, neskaitot pievienotās vērtības nodokli.

Nomas līguma termiņš – 5 (pieci) gadi no līguma parakstīšanas dienas.

Mutiskās izsoles dalībnieku reģistrācija līdz 2025. gada 20. februāra plkst. 17:00.

Mutiskās izsoles noteikumus un informāciju par īpašumu var saņemt Kuldīgas novada pašvaldības informācijas centrā Baznīcas ielā 1, Kuldīgā, Kuldīgas novadā. Informācija pa tālruni 63350413, e-pasts dome@kuldiga.lv

Nomas objektu var apskatīt patstāvīgi, vai darba dienās, iepriekš piezvanot un vienojoties par apskates laiku ar Snēpeles pagasta pārvaldes vadītāju Aigu Bulavu, tālrunis +371 29429578 (darba laikā 8:00-17:00).

Pagastmaja_Snepele_izsoles_noteikumi

Pieteikuma_veidlapa_Pagastmaja_Snepele

Komentāri ir slēgti.