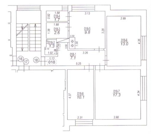
Pārdod nekustamo īpašumu – dzīvokli “Almāle 7”-18, Almālē, Alsungas pagasts, Kuldīgas novads, 63.7 m²
Kuldīgas novada pašvaldība saskaņā ar Publiskas personas mantas atsavināšanas likumu pārdod elektroniskā izsolē ar augšupejošu soli Kuldīgas novada pašvaldībai piederošo dzīvokļa īpašumu “Almāle 7” – 18, Almālē, Alsungas pagasts, Kuldīgas novads (kadastra Nr. 62429000195). Īpašuma sastāvs: trīsistabu dzīvoklis ar platību 63,7 m2, kopīpašuma 6370/91210 domājamās daļas no daudzdzīvokļu dzīvojamās mājas ar kadastra apzīmējumu 62420090281001 un zemes vienības ar kadastra apzīmējumu 62420090281. Dzīvokļa īpašuma atsavināšanas nosacījumi pieejami izsoles noteikumos.
Nosacītā cena: 3200 EUR, drošības nauda: 320 EUR, izsoles solis 50 EUR. Izsole sākas elektronisko izsoļu vietnē https://izsoles.ta.gov.lv 2025. gada 12. augustā plkst. 13.00 un noslēdzas 2025. gada 11. septembrī plkst. 13.00.
Personai, kura vēlas piedalīties izsolē, līdz 2025. gada 1. septembra plkst. 23.59 jāiemaksā nodrošinājums 10% apmērā no izsolāmā objekta nosacītās cenas 320 EUR apmērā Kuldīgas novada pašvaldības pamatbudžeta kontā: Kuldīgas novada pašvaldība, reģ. Nr. 90000035590, SEB banka, kods UNLALV2X, konts LV26UNLA0011001130401, norādot “Almāle 7” – 18, Almālē, Alsungas pag., izsole”, un, izmantojot elektronisko izsoļu vietni, jānosūta lūgums izsoles rīkotājam autorizēt to dalībai izsolē. Nodrošinājums uzskatāms par iesniegtu, ja tas saņemts norādītajā kontā līdz 2025. gada 1. septembra plkst. 23.59. Papildus jāveic dalības maksas 20 EUR apmērā apmaksa saskaņā ar elektroniskajā izsoļu vietnē elektroniski izrakstīto rēķinu.
Samaksas nosacījumi par nosolīto objektu: piedāvātā augstākā summa, ieskaitot iemaksāto nodrošinājumu, jāsamaksā par nosolīto nekustamo īpašumu 2 (divu) nedēļu laikā pēc izsoles noslēguma dienas.
Izsoles noteikumus un informāciju par dzīvokļa īpašumu var saņemt Kuldīgas novada pašvaldības informācijas centrā Baznīcas ielā 1, Kuldīgā, Kuldīgas novadā, pa tālruni 63350143 vai pa e-pastu dome@kuldiga.lv.
Almale_7_18_elektroniskas_izsoles_noteikumi

Kuldiga district municipality in accordance with the Law on the Alienation of the Property of a Public Person is selling in an electronic auction with an ascending step a residential property at “Almāle 7” – 18 in Almāle, Alsunga parish, Kuldīga district (cadastral number 62429000195) owned by Kuldīga district municipality. The immovable property consists of a three-room apartment, total area 63,7 m2, 6370/91210 relevant undivided shares of a joint ownership property of an apartment building with cadastral identifier 62420090281001 and land unit with cadastral identifier 62420090281. Conditions of alienation of the residential property can be found in the auction terms.
Starting price: 3200 EUR, security deposit: 320 EUR, auction step: 50 EUR. The auction takes place on the electronic auction website https://izsoles.ta.gov.lv. The auction starts on 12 August, 2025at 13:00 and the auction ends on 11 September, 2025 at 13:00.
Persons willing to participate in the auction, shall transfer the security deposit in the amount of 320 EUR, 10% of the real estate appraisal, until 1 September, 2025, 23:59 to Kuldīga district municipality core budget account: Kuldīgas novada pašvaldība, Reg. No. 90000035590, bank: AS “SEB banka”, SWIFT (BIC) code: UNLALV2X, account number: LV26UNLA0011001130401, indicating “Almāle 7” – 18, Almālē, Alsungaspag., izsole”, and by using the electronic auction website shall send a request to the auctioneer to authorize their participation in the auction. The security deposit is considered submitted if it is received in the specified account by 1 September, 2025, 23:59. Additional participation fee in the amount of 20 EUR shall be paid according to the invoice, electronically prepared by the auction website.
Payment conditions for the auctioned object: the highest amount offered, which includes paid security deposit, shall be paid for the auctioned immovable property within 2 (two) weeks after the auction end date.
Auction terms and information about the property can be received at the information center of Kuldīga district municipality at Baznīcas iela 1, Kuldīga, Kuldīga municipality, via phone +371 63350143 or via email dome@kuldiga.lv.